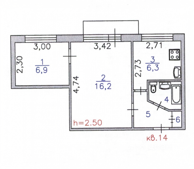
Продается 2-х комн. квартира, 35 кв.м., 5/5 эт
| Стоимость | 4 360 000 |
|---|---|
| Ремонт | Косметический |
| Доля в квартире | Нет |
| Комнат в квартире | 2 |
| Площадь, кв.м. | 35 |
| Жилая площадь | 20 |
| Площадь кухни, кв.м. | 6 |
| Этаж | 5 |
| Этажность | 5 |
| Материал стен | Панельный |
| Населенный пункт | Сургут |
|---|---|
| Район города | микрорайон 15А |
| Улица | улица Пушкина |
| Номер дома | 27 |
Продается уютная двухкомнатная квартира в панельном доме в самом центре города с развитой инфраструктурой. Общая площадь квартиры составляет 35,6 кв. м. Высота потолков — 2,7 метра, окна выходят во двор, а также есть балкон, где можно насладиться свежим воздухом. В квартире выполнен косметический ремонт в 2019 году. натяжные потолки во всех комнатах. на полах линолеум. В комнатах светло и уютно, благодаря удачному расположению окон. Санузел совмещенный, что удобно для современных интерьеров. На кухне достаточно места для приготовления пищи и приема гостей. В квартире есть все необходимое для комфортного проживания. Кап. ремонт по дому был произведен 2 года назад. Дом находится в хорошем состоянии, подъезд оснащен пандусом, поэтому можно легко передвигаться с колясками или велосипедами. Во дворе предусмотрена наземная парковка для автомобилей. Район, в котором расположена квартира, отличается развитой инфраструктурой. В шаговой доступности находятся школы и детские сады, что удобно для семей с детьми. Рядом также есть клиники, магазины и другие необходимые объекты. Хорошая транспортная доступность позволяет быстро добраться до любой части города. Квартира продается от собственника, что упрощает процесс сделки. Возможна покупка в ипотеку. Все документы готовы к сделке. Это отличное предложение для тех, кто ищет уютное и доступное жилье в спокойном районе. Записывайтесь на просмотр, чтобы лично оценить все преимущества квартиры и района. Буду рада ответить на все ваши вопросы.































